中古
物件
『倉敷市早高』建坪44坪超もの贅沢な広さの平家がリノベーション済として登場☆
土地96坪超、建坪44坪超の平家邸宅。
元々の『和』に馴染ませた形で『洋』のデザインを融合させた和モダンデザインの素敵なお家が完成しました。
間取りを大きく改修すると共にワンランク上の最新の住宅設備機器への交換や駐車スペースの拡幅など
子育て世代にもマッチする大規模改修となっています!
ご興味のある方はお気軽にお問い合わせください。
- 所在地
- 倉敷市早高
- 土地面積
- 320.64㎡
- 建物面積
- 146.01㎡
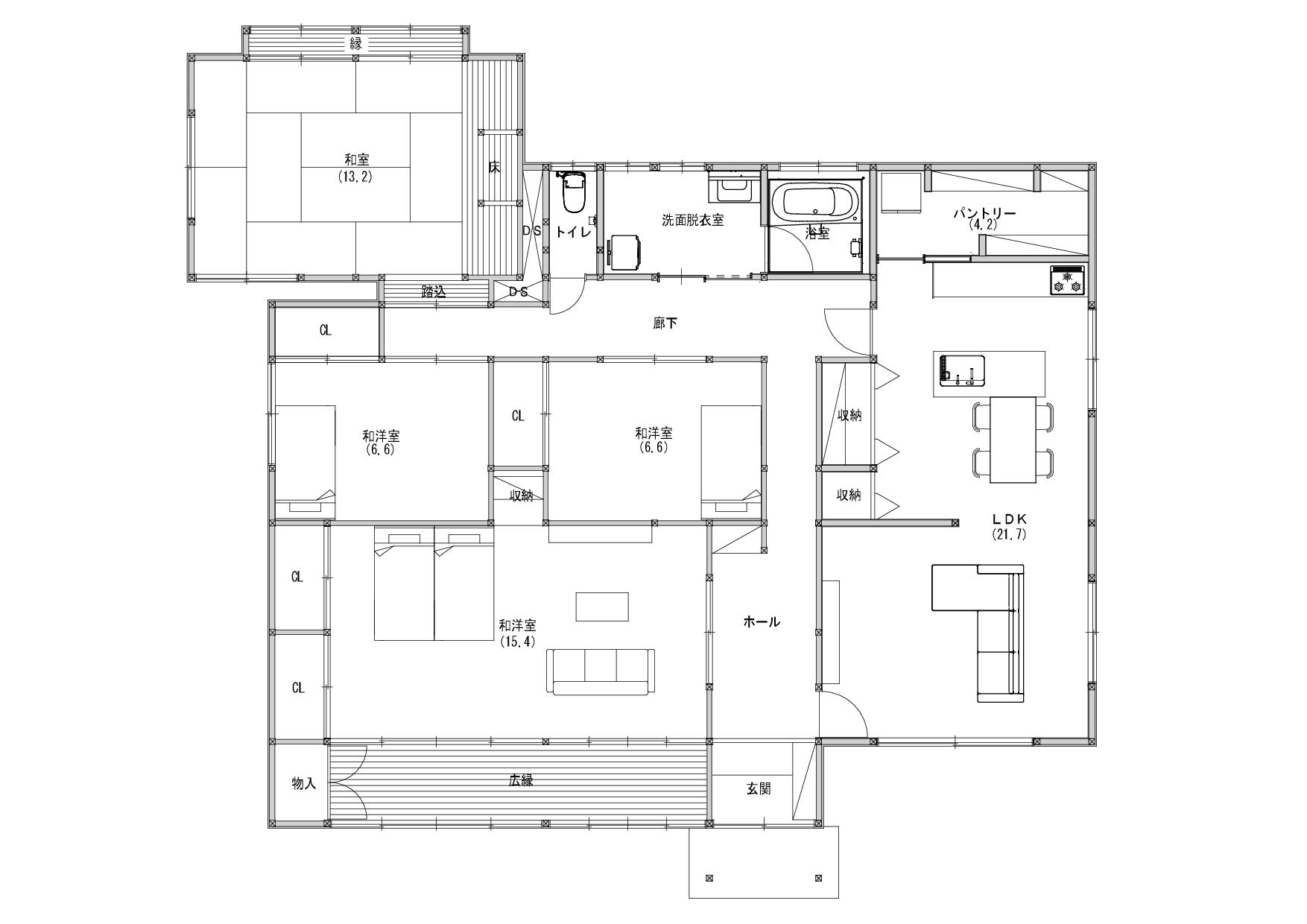
- 間取り
- 3LDK+S+離れ
- 価格
- 2,750万円
-
外観
-
駐車スペース
-
お庭
-
アプローチ
-
玄関ホール
-
LDK
-
LDK
-
ダイニングキッチン
-
セパレート型システムキッチン
-
セパレート型システムキッチン
-
セパレート型システムキッチン
-
セパレート型システムキッチン
-
パントリー
-
廊下
-
トイレ
-
洗面台
-
-
主寝室
-
主寝室
-
主寝室
-
子供部屋
-
子供部屋
-
離れ
-
間取り図
物件概要
| 価格 | 価格 2,750万円 | 所在地 | 倉敷市早高 |
|---|---|---|---|
| 土地面積 | 320.64㎡(96.99坪) | 建物面積 | 本宅:146.01㎡(44.16坪) |
| 間取り | 3LDK+S+離れ | 構造 | 本宅:木造 瓦葺 平家建て |
| 駐車場 | 3台 | 接道 |
北東側約3.4m道路に接道 |
| 経過 | 建築 平成4年5月築 | 水道 | 公営 |
| 排水 | 個別浄化槽 | 給湯 | 個別プロパン |
| 小学校区 | 豊洲小学校(約1.5km) | 中学校区 | 東陽中学校(約750m) |
| リフォーム | 外壁等塗装、間取り変更、内部建具・キッチン・浴室・洗面台・トイレ・給湯器・コンロ交換、クロス・CF・障子張替、追炊き配管・食洗機・浴室乾燥機新設、エクステリア改修 | ||
| 備考 |
■屋内続きの未登記離れあり。必要な場合は付属建物登記後お引渡し致します。必要に応じて追加改修工事承ります。 |
||
