中古
物件
『瀬戸内市牛窓町牛窓』牛窓ブルーハイツ内☆屋内より瀬戸内海が望める高台の邸宅が登場!
景観の為、電柱がなく邸宅が立ち並ぶ街並みが整えられた牛窓ブルーハイツ。
その一画に屋内からでも瀬戸内海を望めるオーシャンビュー物件が登場☆
(現状は樹木により海が見え隠れする状態。隣地土地所有者には伐採の許可取得済)
駐車スペースもフラットに並列2台駐車可能な希少物件です!
追加リフォームなど必要に応じて承ることも可能ですのでお気軽にお問合せください。
- 所在地
- 瀬戸内市牛窓町牛窓
- 土地面積
- 420.17㎡
- 建物面積
- 131.52㎡
- 間取り
- 3LDK+3S
- 価格
- 2,000万円
-
西外観
-
西外観
-
東外観
-
北外観
-
駐車スペース
-
アプローチ
-
玄関ホール
-
LDK
-
キッチン
-
バルコニー
-
浴室
-
2階トイレ
-
和室➀
-
和室②
-
階段
-
1階洋室
-
1階南西部テラス
-
1階南東部テラス
-
シャワールーム
-
シャワールーム
-
ストックルーム
-
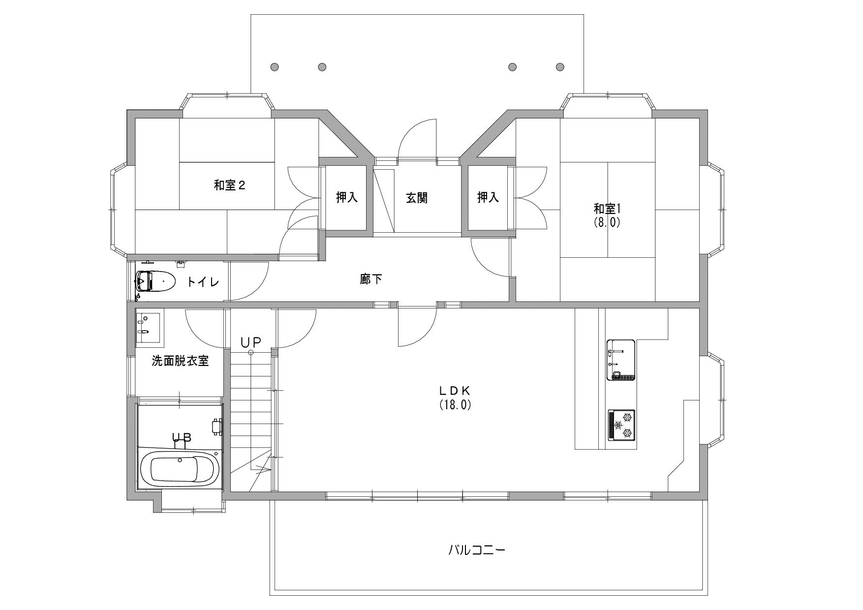
2階間取り
-
1階間取り
物件概要
| 価格 | 価格 2,000万円 | 所在地 | 瀬戸内市牛窓町牛窓 |
|---|---|---|---|
| 土地面積 | 420.17㎡(127.10坪) | 建物面積 | 131.52㎡(39.78坪) |
| 間取り | 3LDK+2S | 構造 | 木造 スレート葺 2階建て |
| 駐車場 | 2台 | 接道 |
北側約5.0m道路に接道 |
| 経過 | 建築 平成4年5月築 | 水道 | 公営 |
| 排水 | 浄化槽 | 給湯 | 個別プロパン |
| 小学校区 |
牛窓東小学校(約1.9km) |
中学校区 | 牛窓中学校(約1.1km) |
| リフォーム | |||
| 備考 |
■オーシャンビュー |
||
