中古
物件
【商談中】『赤磐市桜が丘西8丁目』大和ハウスの強靭な躯体はそのままリノベーション!駐車スペースも4台可☆
山陽北小学校まで約40mという好立地にフル改修を行なった大和ハウスの建物が登場!
大和ハウスの躯体はそのままに今の時代に合わせた間取り変更及び最新のワングレード高い住宅設備機器に刷新。
また、本物件は並列3台+縦列1台と合計4台分の駐車スペースが御座います。
ご興味頂けた方はお気軽にお問合せください!
- 所在地
- 赤磐市桜が丘西8丁目
- 土地面積
- 237.53㎡
- 建物面積
- 116.96㎡
- 間取り
- 3LDK+2S
- 価格
- 1,850万円
-
外観
-
駐車スペース
-
お庭
-
アプローチ
-
玄関ホール
-
LDK
-
LDK
-
セパレート型システムキッチン
-
セパレート型システムキッチン
-
セパレート型システムキッチン
-
セパレート型システムキッチン
-
パントリー
-
ユーティリティ
-
洗面所
-
システムバス
-
1階トイレ
-
階段
-
2階ホール
-
主寝室
-
ファミリークローゼット
-
子供部屋➀
-
子供部屋②
-
バルコニー
-
2階トイレ
-
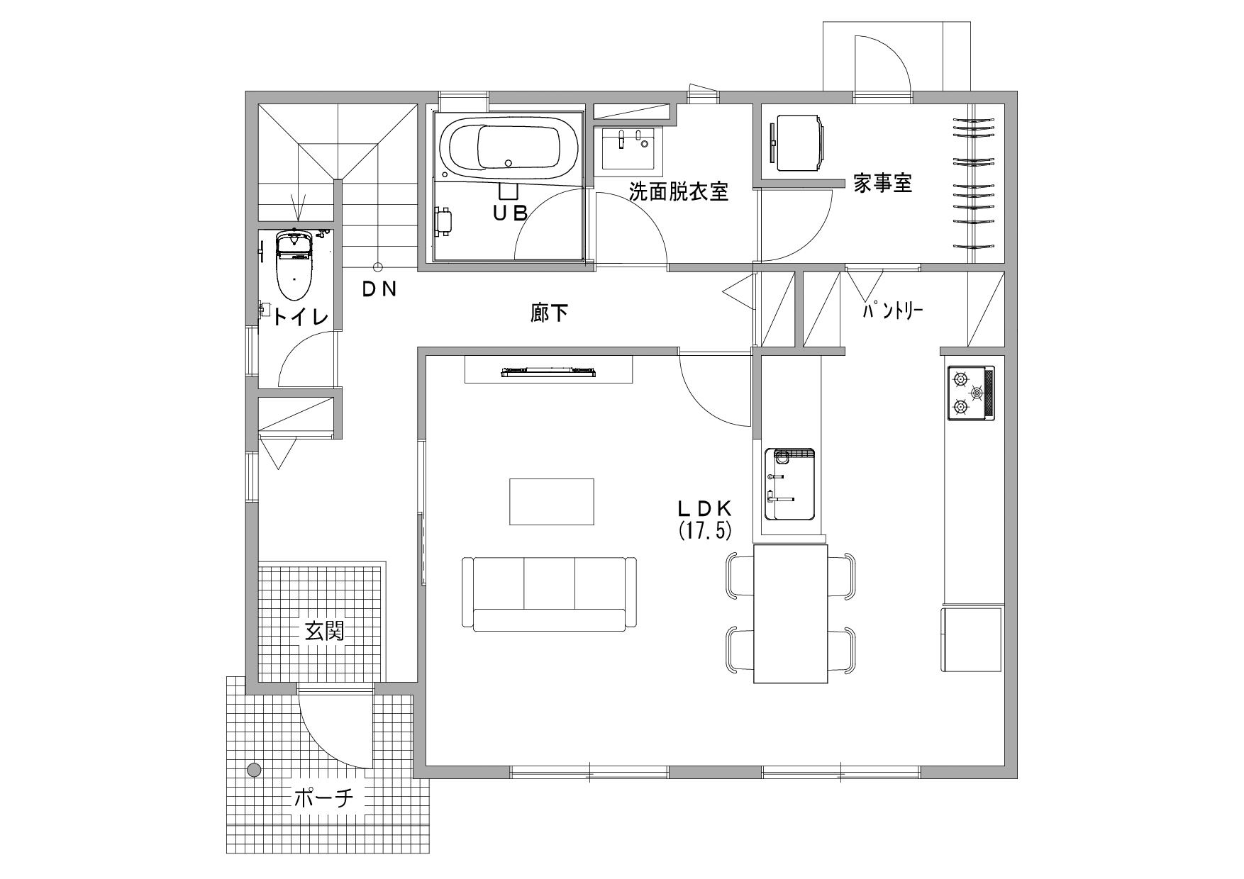
1階間取り図
-
2階間取り図
物件概要
| 価格 | 価格 1,850万円 | 所在地 | 赤磐市桜が丘西8丁目 |
|---|---|---|---|
| 土地面積 | 237.53㎡(71.85坪) | 建物面積 | 116.96㎡(35.38坪) |
| 間取り | 3LDK+2S | 構造 | 軽量鉄骨造 スレート葺 2階建て |
| 駐車場 | 4台 | 接道 |
南側約6.0m道路に接道 |
| 経過 | 建築 平成4年2月築 | 水道 | 公営 |
| 排水 | 公共下水 | 給湯 | 個別プロパン |
| 小学校区 | 山陽北小学校(約40m) | 中学校区 | 桜が丘中学校(約1.6km) |
| リフォーム | 間取り大規模改修、キッチン・浴室・洗面台・トイレ・コンロ・給湯器・インターホン交換、クロス・畳・襖・障子張替、一部床改修、食洗機・浴室換気乾燥機・追炊き配管新設、エクステリア改修 | ||
| 備考 |
■施工会社:大和ハウス工業株式会社 |
||
