中古
物件
『赤磐市桜が丘西9丁目』築浅の大和ハウスの建物をフルリフォーム☆
築年数が比較的浅く重厚感のある大和ハウスの建物を内外装・住宅設備機器を刷新!
建坪は40坪近くあり、ゆとりのサイズ感があります。
築浅物件でありペアガラスや25mm厚のサイディングなど基本スペックの高いお家となっています。
ご興味のある方はお問合せください。
- 所在地
- 赤磐市桜が丘西9丁目
- 土地面積
- 220.05㎡
- 建物面積
- 131.20㎡
- 間取り
- 4LDK+S
- 価格
- 2,090万円
-
外観
-
外観
-
駐車スペース
-
お庭
-
アプローチ
-
玄関ホール
-
玄関ホール
-
LDK
-
システムキッチン
-
システムキッチン
-
1階和室
-
1階トイレ
-
洗面所
-
システムバス
-
階段
-
主寝室
-
子供部屋①
-
子供部屋②
-
納戸
-
2階トイレ
-
バルコニー
-
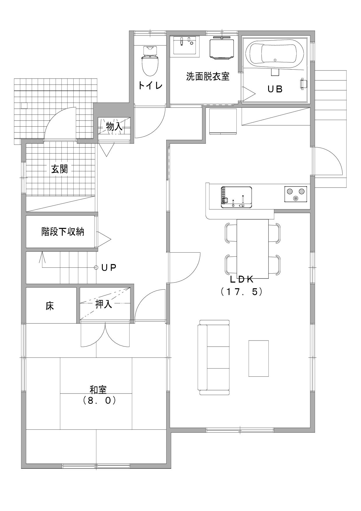
1回間取り
-
2階間取り
物件概要
| 価格 | 価格 2,090万円 | 所在地 | 赤磐市桜が丘西9丁目 |
|---|---|---|---|
| 土地面積 | 220.05㎡(65.56坪) | 建物面積 | 131.20㎡(39.68坪) |
| 間取り | 4LDK+S | 構造 | 軽量鉄骨造 スレート葺 2階建て |
| 駐車場 | 3台可 | 接道 |
北東側約6.0m道路に接道 |
| 経過 | 建築 平成13年8月築 | 水道 | 公営 |
| 排水 | 公共下水 | 給湯 | 個別プロパン |
| 小学校区 | 山陽北小学校(約650m) | 中学校区 | 桜が丘中学校(約1.5km) |
| リフォーム | 外壁・屋根等塗装、キッチン・浴室・洗面台・トイレ・給湯器・コンロ・インターホン交換、クロス・畳・襖・障子張替、追炊き配管・浴室換気乾燥機・食洗機新設 | ||
| 備考 |
■施工会社:大和ハウス工業株式会社 |
||
